Проект современного трехэтажного дома.
Загородный дом площадью 400м в КП Павловы Озера.









Архитектурные особенности
Представляем вашему вниманию проект современного загородного дома общей площадью 400 м², расположенного в живописном коттеджном поселке «Павловы Озера». Такой дом станет идеальным выбором для тех, кто ценит комфорт, эстетику и уединение с природой.
Дом выполнен в стиле современной архитектуры, где каждый элемент фасада гармонично сочетается друг с другом. Внешняя отделка включает натуральные материалы – дерево, камень и декоративную штукатурку, что придает зданию элегантный и респектабельный вид. Фасады дома отличаются чистыми линиями и минималистичным дизайном, подчеркивающим простор и открытость пространства.
Внутреннее пространство
В доме высокие потолки создают ощущение свободы и простора, а большие панорамные окна наполняют интерьер естественным светом и открывают виды на окружающий ландшафт. Просторные комнаты позволяют воплотить любые дизайнерские решения и создать уютную атмосферу для жизни и отдыха.
Комфорт и функциональность
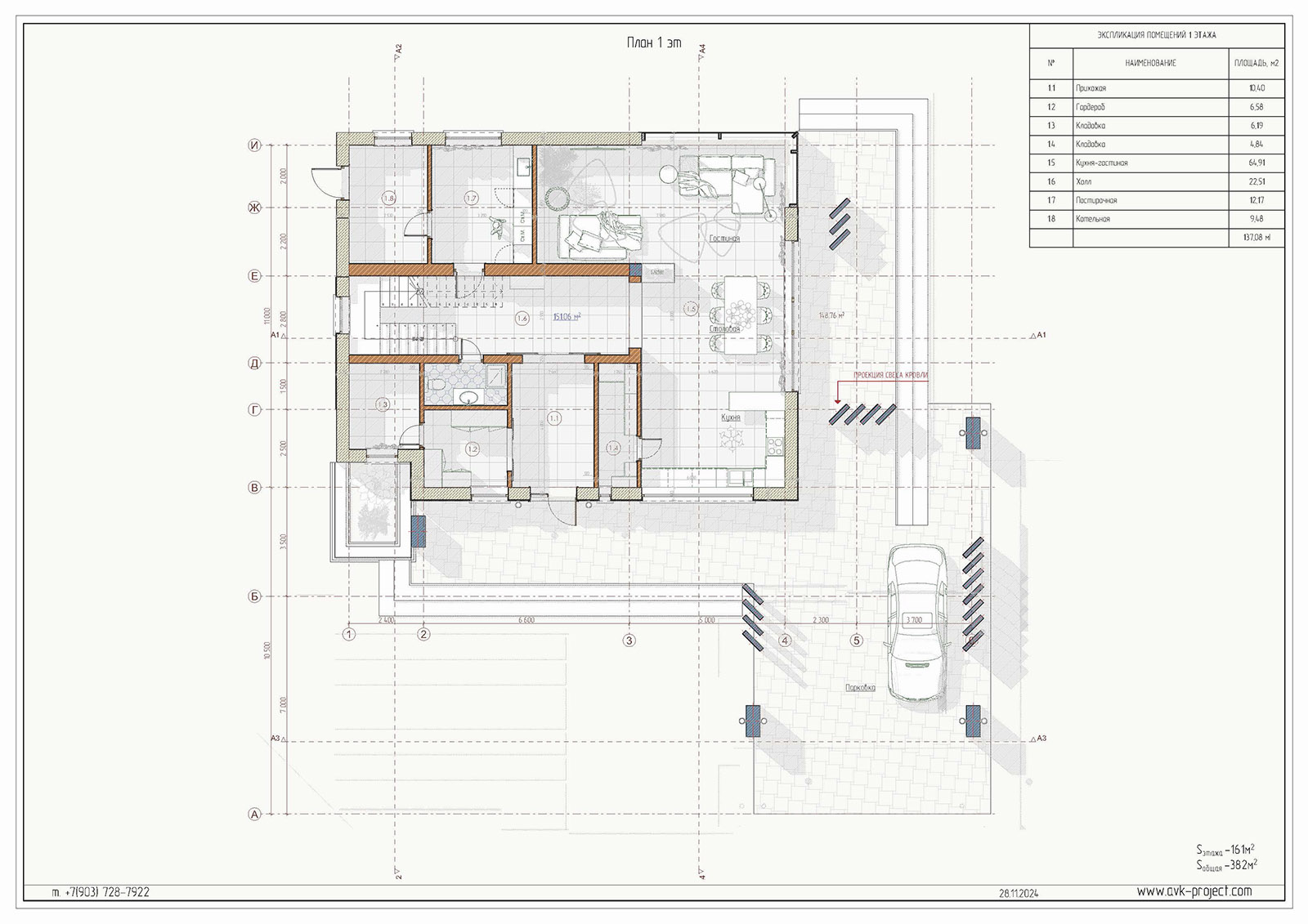
Проект предусматривает продуманную планировку, которая сочетает в себе зоны для комфортного проживания всей семьи и возможности для приема гостей. В доме предусмотрены все необходимые коммуникации и инженерные системы, обеспечивающие высокий уровень комфорта и безопасности.
Экологичность и качество
При строительстве используются экологически чистые и высококачественные материалы, что гарантирует долговечность и надежность конструкции. Отделка деревом добавляет тепла и уюта интерьеру, создавая приятную атмосферу для жизни.
Такой дом станет вашим личным оазисом спокойствия и гармонии, где вы сможете наслаждаться каждым моментом своей жизни в кругу близких людей.


