Проект загородного дома в г. Чехов.
Двухэтажный современный загородный дом из газобетона площадью 470м2.
Современный загородный дом
Это не только комфортное жилье для жизни, но и настоящее произведение искусства. Сегодня мы рассмотрим проект современного загородного дома, который сочетает в себе функциональность, эстетику и экологичность.
Первое, что бросается в глаза при взгляде на этот дом – его необычная архитектура. Фасад выполнен из клинкера, стекла и металла, что создает ощущение надежности. Кроме того, в проекте использованы современные технологии строительства, такие как монолитные конструкции и использование экологически чистых материалов.
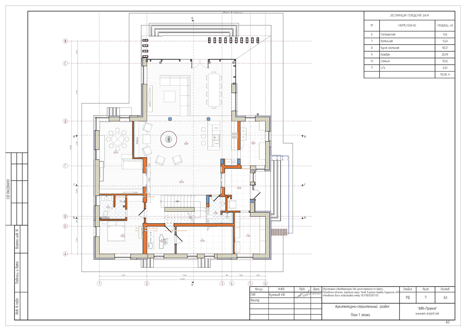
Внутри дома все продумано до мелочей.
Просторная гостиная с большими окнами позволяет наслаждаться прекрасными видами природы прямо из дома. Кухня оснащена самой современной техникой и оборудована всем необходимым для приготовления еды. Спальни имеют большие окна и высокие потолки, что создает ощущение простора и свободы. Особое внимание уделено экологии. В доме установлены системы очистки воды и воздуха, а также используются солнечные батареи для обеспечения энергией. Кроме того, дом построен на участке с большим количеством деревьев, что делает его еще более ориентированным на природу. Но не только внешний вид и внутренняя отделка делают этот дом уникальным. Он расположен в живописном месте, окруженном лесами и озерами. Это позволяет его обитателям наслаждаться природой прямо из своего дома.
В заключение можно сказать, что современный загородный дом от нашего архитектурного бюро – не только красив и удобен, но и является объектом дизайна, вписанным в ландшафт участка. Он сочетает в себе функциональность, эстетику и экологичность, создавая идеальное место для жизни.


