АВК-Проект — in-1
АВК-Проект — in-2
АВК-Проект — in-3
Меню

Проект дома в Павловской слободе

Проект двухэтажного дома площадью 600м2.

Фото реализации проекта. 

Проект современного двухэтажного дома в Павловской слободе

 

Проект минималистичного дома. Главный фасад

 

Современный дом с минималистичной архитектурой фасадов

 

Проект минималистичного загородного дома.

 

 Современный кирпичный двухэтажный дом

 

Проект кирпичного двухэтажного дома

 

 Общий вид современного загородного дома

 

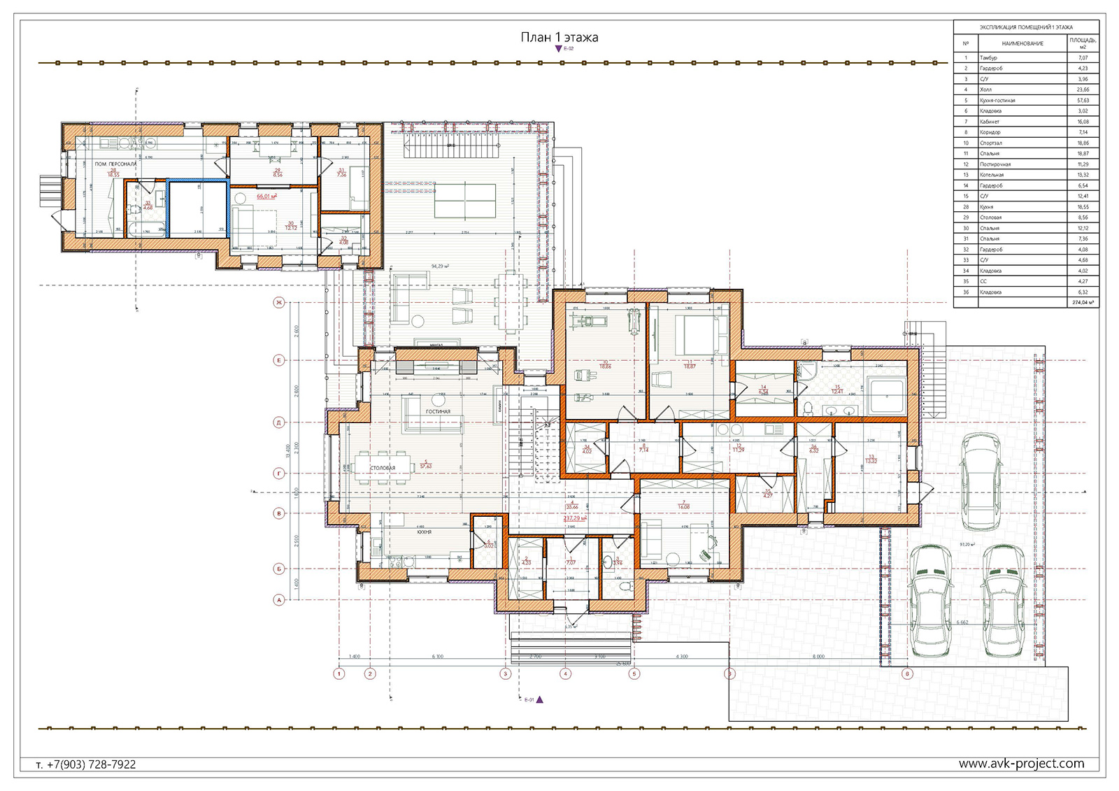
План 1 этажа

 

План 2 этажа