Проект одноэтажного дома 200 м2
Элегантный одноэтажный дом, идеально сочетающий минимализм и комфорт
Современный одноэтажный загородный дом.












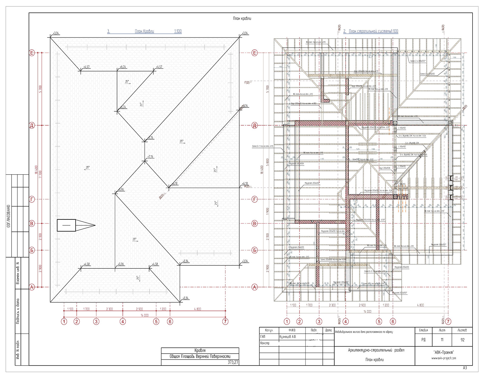
Этот элегантный одноэтажный дом идеально сочетает минимализм и комфорт, предлагая просторное пространство для жизни в гармонии с природой. Фасады выполнены в современном стиле с использованием натуральных материалов: тёплое дерево, благородный доломит, прочная клинкерная кладка и стильная металлическая фальцевая кровля. Большая площадь остекления — от панорамных окон до раздвижных систем — заливает интерьеры естественным светом и открывает захватывающие виды на участок.
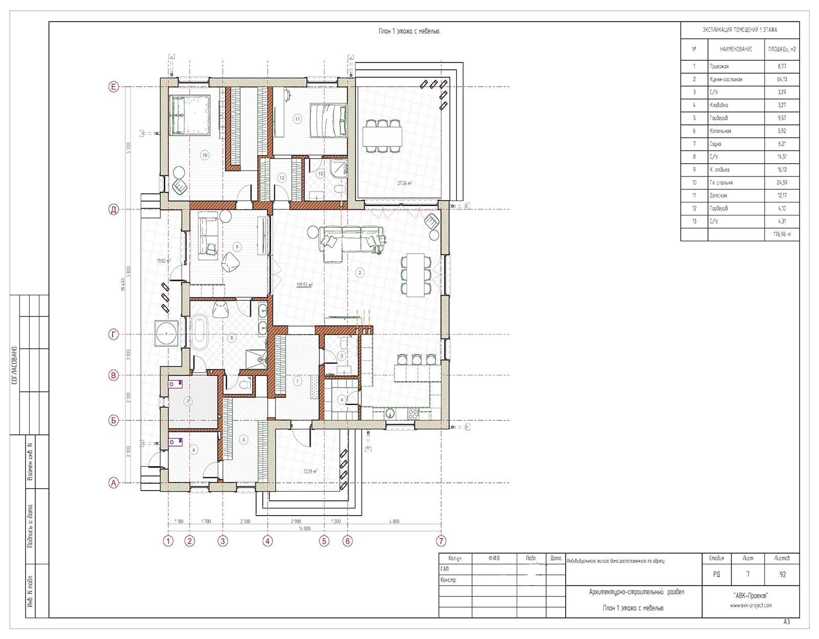
Сердце дома — большая двусветная гостиная с зоной столовой, где высота потолков создаёт ощущение свободы и воздушности. Рядом — современная кухня с премиальной техникой и удобной отдельной кладовкой для хранения. Главная спальня — настоящий оазис уединения: просторная гардеробная, стильная ванная комната и личная сауна с комнатой отдыха для релакса после активного дня.
Дом спроектирован для семьи, ценящей функциональность и эстетику: все зоны логично связаны, предусмотрены террасы для отдыха на свежем воздухе. Энергоэффективные решения обеспечивают комфорт круглый год.


